0
Skip to Content
Work
About
Team
Contact
Open Menu
Close Menu
Work
About
Team
Contact
Open Menu
Close Menu
Work
About
Team
Contact
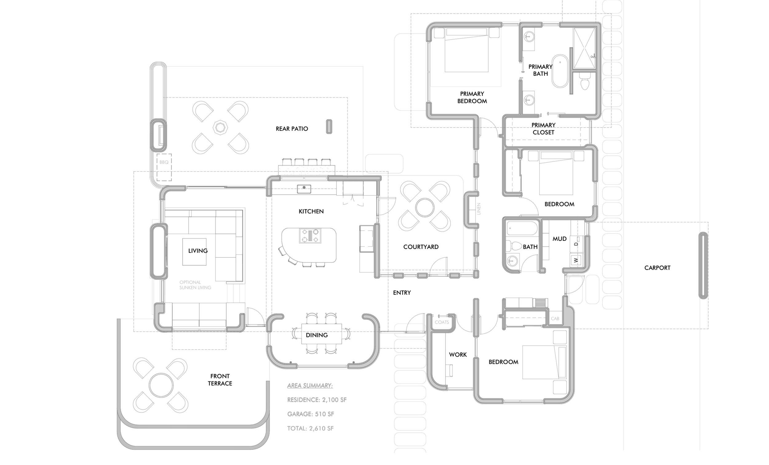
The Grande - Cleora Colorado
Previous
Previous
Cleora Duplex
Next
Next
Wildfire Restoration House